Properties
1131 Waverley Ln SWCullman, AL
Due to the health concerns created by Coronavirus we are offering personal 1-1 online video walkthough tours where possible.




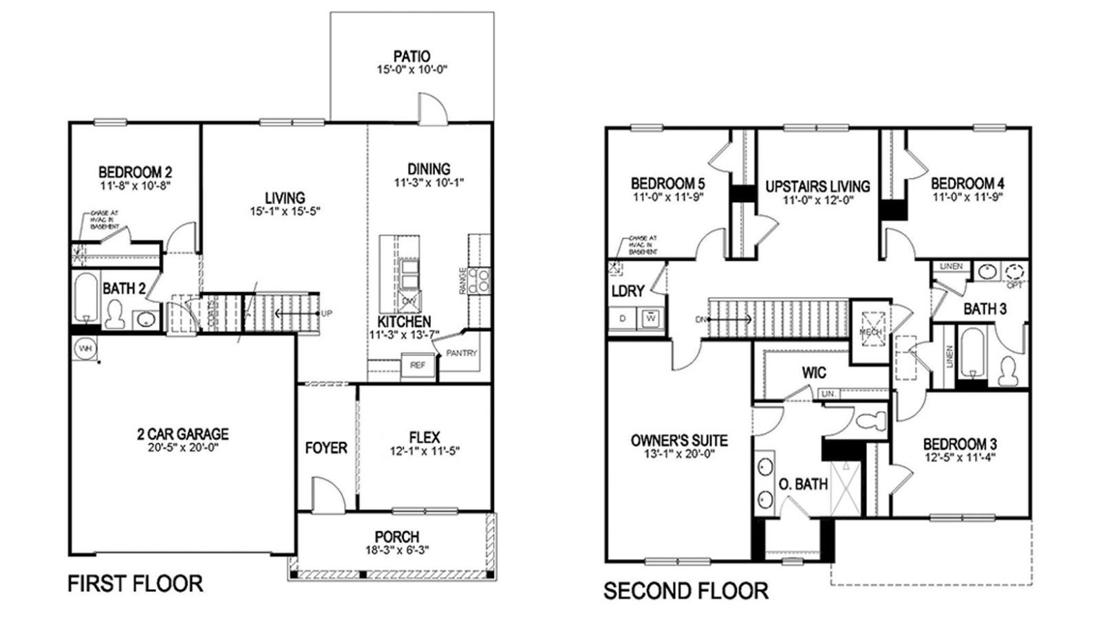
CULLMAN CITY SCHOOL DISTRICT Ask about our interest rates (AS LOW AS 3.99%) and up to $6,000 towards closing costs and easily added options. The Hayden is a spacious two-story plan with 5 bedrooms and 3 bathrooms, covering 2,511 square feet. On the main level, you'll find a versatile flex room near the foyer, perfect for a formal dining area or a convenient home office. The gourmet kitchen boasts an expansive island for added seating, stunning granite countertops, stainless steel appliances, and a generous pantry. It seamlessly connects to the dining space and a roomy living area. Completing the main level is a bedroom with a full bathroom, providing flexibility and convenience for guests or family members. Upstairs, the Primary Bedroom awaits, offering a lavish bath with a shower, private bathroom, double vanities with marble counters, and a spacious walk-in closet. Additionally, the second level comprises three more bedrooms, a full bathroom, a walk-in laundry room, and a loft-style
9 hours ago | Listing updated with changes from the MLS® | |
a week ago | Listing first seen on site |
IDX information is provided exclusively for consumers’ personal, non-commercial use, and may not be used for any purpose other than to identify prospective properties consumers may be interested in purchasing.This data is deemed reliable but is not guaranteed accurate by the MLS. Source: Cullman Association of Realtors MLS
Did you know? You can invite friends and family to your search. They can join your search, rate and discuss listings with you.